Property Address: Snells Beach NZ 0920
Design: Selwood 164, Skillion –
House & Land Package by Stroud Homes Auckland North
SITE COSTS
Includes:
Foundations
Site Works
Council building consent, plans, reports and surveyor.
INCLUSIONS
With over 90 FULLY LOADED inclusions, your home will come packed with everything you need to move in!
Here are some of our highlight inclusions;
- 900mm SMEG oven and hob
- SMEG stainless steel dishwasher
- Colour, kitchen and electrical consultations relating to all aspects of the home
- Fully tiled level entry showers
- Two heat pumps
And plenty more ... please refer to Stroud Homes fully loaded inclusions brochure!
ADDITIONAL INCLUSIONS
Concrete driveway
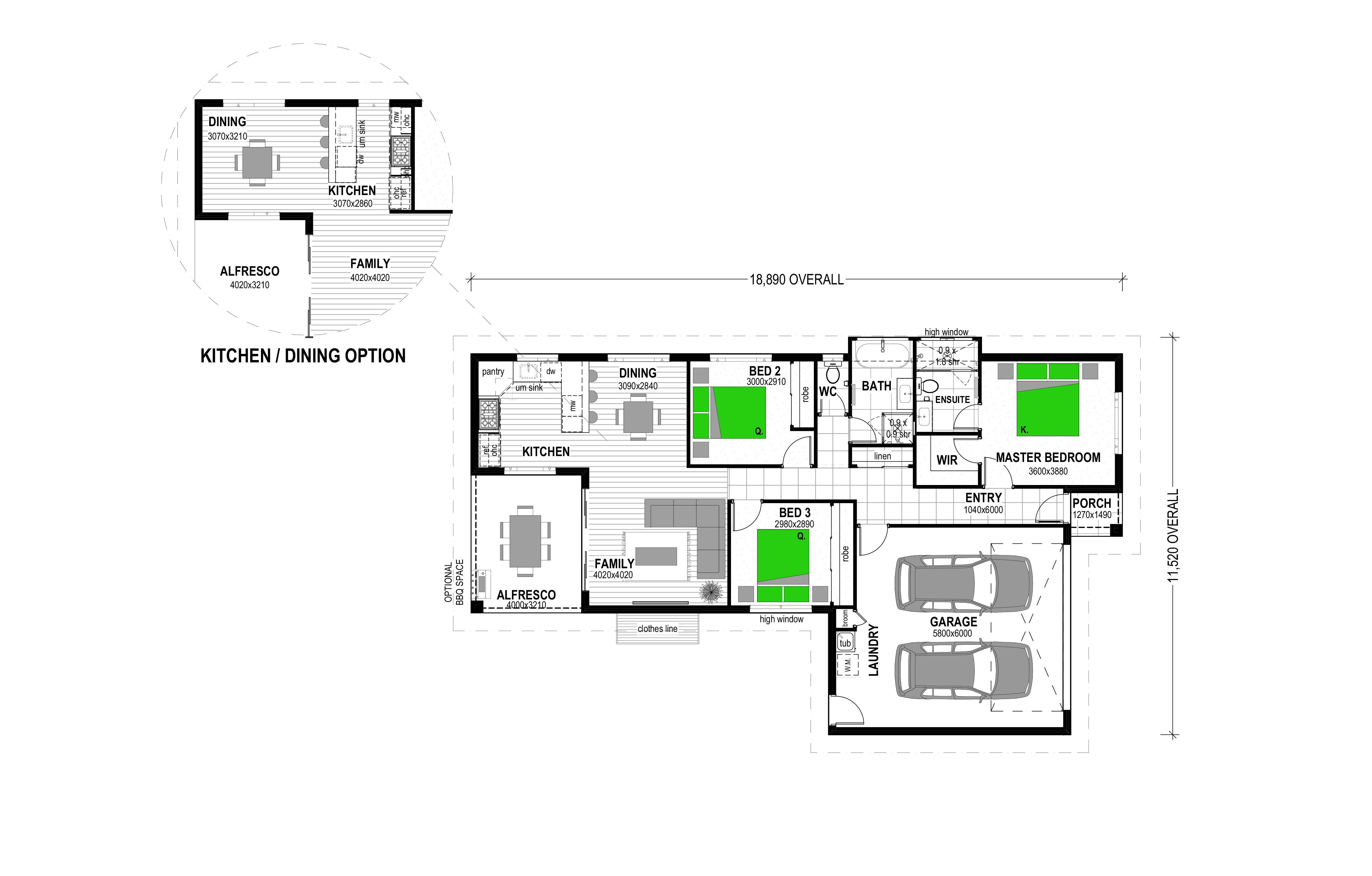
ABOUT SELWOOD 164
The hard work has all been done with our Selwood 164 design. The design can be re-orientated for privacy and the sun. This well thought out, comfortable home, is perfect for a variety of different sections and living situations!
ABOUT MURRAY O'NEILL, Sales Consultant, Stroud Homes Auckland North
Murray is an experienced new home consultant based in Warkworth.
ABOUT STROUD HOMES
With more than 20 years of design and building experience, Stroud Homes has a proven track record of success and a strong reputation for exceptional service and superior quality. The man behind the locally owned brand is James Stroud. Stroud Homes has a great reputation as an award-winning builder. We can provide simple and cost-effective advice, from our designs or yours. How do we do it?
1. Unbeatable buying power via excellent supplier relationships
2. Commitment to continuous improvement to customer service and quality
3. Pre-pricing new homes on vacant land
Stroud Homes care about our customers and we do what we say we’re going to do. We take the time to listen and work alongside our customers every step of the way, so the end result feels just right,like home.
PLEASE NOTE
House & Land Pricing as per Stroud Fully Loaded Inclusions. See our website for House & Land Package Terms & Conditions
 All plans and artists impressions are indicative only. Plans, façades and final pricing are subject to change and are dependent on inclusions, local regulations and land characteristics.
                    
                    
                    All plans and artists impressions are indicative only. Plans, façades and final pricing are subject to change and are dependent on inclusions, local regulations and land characteristics.
                            Stroud Homes offers you real guarantees and commitments that will make your home build a stress-free experience.
We’re not a laid-back building company; we know you’re paying interest, we know you’re paying rent, and we know how important it is to make building a new home as worry-free as possible.
We understand what is important to you and your family and our guarantees are there to ensure your peace of mind.