Property Address: Ravenswood NZ 7610
Design: Clutha 177, Manuka –
House & Land Package by Stroud Homes Christchurch North
SITE COSTS
M Class Slab
Site Works to 500mm
INCLUSIONS
With over 90 FULLY LOADED inclusions, your home will come packed with everything you need to move in!
Here are some of our highlight inclusions;
- 900mm stainless steel freestanding oven with gas hob
- 900mm stainless steel rangehood or built in rangehood, vented to exterior
- Stainless steel dishwasher
- Soft close to all kitchen cupboards and drawers
- Bulkheads above the overhead cupboards
- Independent handover inspection
- Frameless mirrors
- Aluminium front entry door
- Floor coverings
- Colour consultation relating to all aspects of the home
- Standard light LED fittings throughout, as per plan
- Home heating - 2 Hi-Wall Heat Pumps (1 in living
- and 1 in master bedroom)
- Double glazed aluminium sliding doors and windows,
- compliant with local H1 standards.
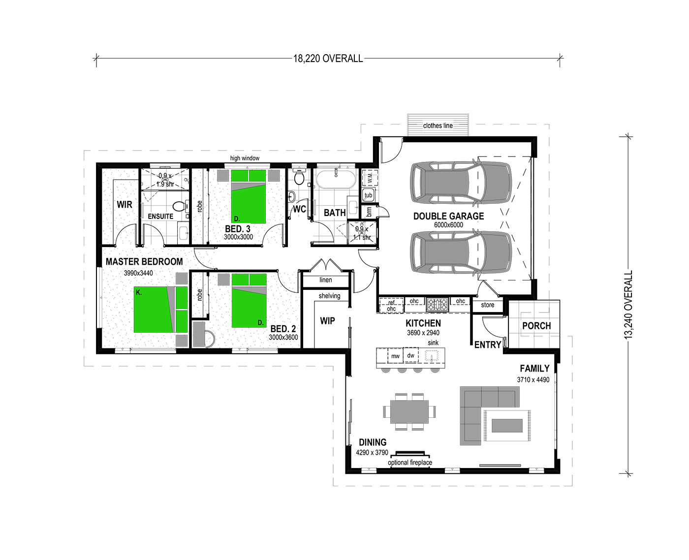
ABOUT CLUTHA 177
The Clutha 177 is a well designed home, ideal for a young family. The design includes three bedrooms, with the main bedroom featuring an ensuite and walk-in robe.
The kitchen features a spacious walk-in pantry, and flows through to the open plan dining and living areas.
ABOUT RAVENSWOOD
Ravenswood is New Zealand’s newest town which has the best of everything, an idyllic rural setting with a new thriving community and a growing town centre. Enjoy all that the Waimakariri region has to offer right on your doorstep, with the convenience of being only 20 minutes from Christchurch city.   With 5 of the 6 stages already built on or sold there will be over 1,500 houses once completed.
Already home to young families, retirees and everything in-between, Ravenswood has been designed around community, so it’s not your average subdivision – it is a great place to call home.  Next to this vibrant community you will find New Zealand’s newest town centre – Ravenswood Central. With 20 hectares of commercially zoned land, Ravenswood Central will grow alongside the community. Many businesses are already established, with much more to come.  Perfectly positioned to enjoy all that the Waimakariri region has to offer, there is so much to discover in Ravenswood’s backyard.
ABOUT JAMIE GWILLIAM, Builder & Owner of, Stroud Homes Christchurch North
Local Christchurch North builder Jamie Gwilliam has over 20 years behind him in the construction industry and has gained extensive experience in all areas of building.
His skilled expertise spans from home extensions and renovations to commercial and residential dwellings, including larger lifestyle homes and duplexes.
As a local house builder, Jamie is focused on bringing his clients the best building experience with a beautiful as a home builder, Jamie believes some of his most important qualities includes his hard work ethic, communication skills and that he’s very trustworthy. He also believes having a qualified team of trades that’s been building for 35 years, instead of having apprentices building homes on their own, is what will set him apart from other builders in the area.
ABOUT STROUD HOMES
With more than 20 years of design and building experience, Stroud Homes has a proven track record of success and a strong reputation for exceptional service and superior quality. The man behind the locally owned brand is James Stroud. Stroud Homes has a great reputation as an award-winning builder. We can provide simple and cost-effective advice, from our designs or yours. How do we do it?
1. Unbeatable buying power via excellent supplier relationships
2. Commitment to continuous improvement to customer service and quality
3. Pre-pricing new homes on vacant land
Stroud Homes care about our customers and we do what we say we’re going to do. We take the time to listen and work alongside our customers every step of the way, so the end result feels just right,like home.
PLEASE NOTE
House & Land Pricing as per Stroud Fully Loaded Inclusions. See our website for House & Land Package Terms & Conditions
 All plans and artists impressions are indicative only. Plans, façades and final pricing are subject to change and are dependent on inclusions, local regulations and land characteristics.
                    
                    
                    All plans and artists impressions are indicative only. Plans, façades and final pricing are subject to change and are dependent on inclusions, local regulations and land characteristics.
                            Stroud Homes offers you real guarantees and commitments that will make your home build a stress-free experience.
We’re not a laid-back building company; we know you’re paying interest, we know you’re paying rent, and we know how important it is to make building a new home as worry-free as possible.
We understand what is important to you and your family and our guarantees are there to ensure your peace of mind.